- Predaj nehnuteľností
- Rodinný dom
- 4 iz novostavba RD - tepelné čerpadlo - Moravany nad Váhom ZĽAVA!!
4 iz novostavba RD - tepelné čerpadlo - Moravany nad Váhom ZĽAVA!!
exkluzívne
224.900,- €
možná dohoda - štandard + zámková dlažba, vrátane provízie, možnosť HÚ
Exkluzívne iba u nás ponúkame novostavbu murovaného 4i rodinného domu v novovybudovanej lokalite, s cestou a osvetlením v obci Moravany nad Váhom. Nachádza sa na pozemku o rozlohe 500 m2.
Dom je postavený podľa najnovších enviromentálnych noriem a trendov. Keďže dom je momentálne vo výstavbe, je možné po dohode zmeniť farby fasády, obkladu, okien, vonkajších žalúzií…..
Ekonomická trieda A0 – nízke náklady na energie.
Vďaka použitým materiálom a technológiám sú náklady na bývanie v tejto dobe minimálne.
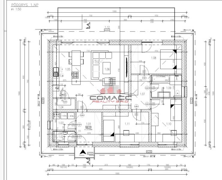
Dispozícia domu:
- vstupná chodba s priestorom na vstavanú skriňu,
- kuchyňa prepojená s obývačkou s výstupom na terasu, komora
- 3 x izba s priestorom na vstavanú skriňu,
- kúpeľňa s vaňou, sprchovým kútom, WC, umývadlo,
- samostatné WC,
- technická miestnosť,
Technický popis:
- veľkosť pozemku: 500 m2,
- zastavaná plocha domu: 130 m2,
- strecha Bramac - čierna - väzníkový krov
- murivo: tehla 30 cm
- zateplenie obvodových múrov: 15cm polystyrén, vonkajšia fasáda, trativody
- plastové okná - 6 komorové izolačné troj-sklo s vonkajšou povrchovou úpravou
- vykurovanie podlahové vodovodné s tepelným čerpadlom
- sadrokartóny, omietky, potery,
- príprava na alarm a kamerový systém,
- predpríprava na krb, prípojky, úprava terénu
Vykurovanie :vykurovanie podlahové vodovodné s tepelným čerpadlom
Dom je napojený na všetky inžinierske siete - elektrika, obecný vodovod, kanalizácia
Výstavba je naplánovaná na jar 2026. Dom sa predáva v stave holo dom. ( Pre podrobné informácie prosím volajte ). Možnosť dokončenia celého domu na klúč. Vieme Vám vyhotoviť vizuál na mieru, ktorý Vám vyhotoví profesionálna dizajnérka a taktiež pomôže s výberom materiálov.
Nehnuteľnosť je možné pre financovať prostredníctvom hypotekárneho úveru. S financovaním Vám pomôže náš hypotekárny špecialista. Ku každému klientovi sa v rámci financovania pristupuje individuálne.
Obec Moravany nad Váhom sa nachádza v okrese Piešťany, vzdialené len 4 min. cesty autom od mesta Piešťany. V obci sa nachádza širšia občianska vybavenosť: materská škola, základná škola, predajňa potravín a priemyselného tovaru, obecný úrad, zdravotné stredisko, lekáreň, kultúrne a športové možnosti v podobe múzea, jazdecký areál a golfové ihrisko, kúpele, ktoré sa nachádzajú v blízkosti obce.
Pri kúpe Vám zabezpečíme kompletný servis od obhliadok až po spracovanie zmlúv a prevod nehnuteľností. Kontaktujte nás a my Vám radi pomôžeme. Pre podrobné informácie volajte 0911 511 601.
Poloha nehnuteľnosti na mape
Podrobné informácie
vrátane provízie
prízemie
4
130 m²
130 m²
500 m²
500 m²
osobné
aktívne
áno
verejný vodovod
230/400V
áno
vaňa a sprchovací kút
vlastné – kombinované
áno
áno
tehla
áno
predpríprava
A
áno
plastové
rovina
asfaltová cesta
0911 511 601
Slovensko
Piešťany
Moravany nad Váhom
Ducovská
osobné
Rodinný dom - novostavba
predaj
- 26. marec 2026 11:38 hod
- poslať správu
- poslať ponuku na e-mail
- dohodnúť prehliadku objektu
- vytlačiť ponuku
Pre viac informácií kontaktujte
Peter Boršč - majiteľ
majiteľ
Telefón: 0911 511 601
E-mail: borsc@comaccreality.sk

