- Predaj nehnuteľností
- Rodinný dom
- Exkl.4 iz novostavba RD - Drahovce ZĽAVA!!!
Exkl.4 iz novostavba RD - Drahovce ZĽAVA!!!
exkluzívne
187.000,- €
vrátane provízie, možnosť HÚ
Exkluzívne iba u nás ponúkame novostavbu murovaného 4i rodinného domu v novovybudovanej lokalite, s cestou a osvetlením v obci Drahovce. Nachádza sa na pozemku o rozlohe 450 m2.
Rodinný dom A - voľný
Rodinný dom B - predaný
Rodinný dom C - predaný
Dom je postavený podľa najnovších enviromentálnych noriem a trendov. Keďže dom je momentálne vo výstavbe, je možné po dohode zmeniť farby fasády, obkladu, okien, vonkajších žalúzií…..
Je možnosť obhliadky realizácie podobných domov.
Ekonomická trieda A0 – nízke náklady na energie.
Vďaka použitým materiálom a technológiám sú náklady na bývanie v tejto dobe minimálne.
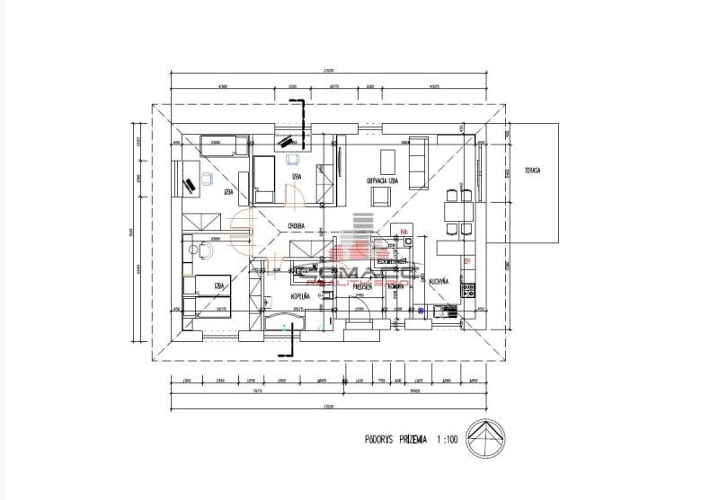
Dispozícia domu:
- vstupná chodba s priestorom na vstavanú skriňu,
- kuchyňa prepojená s obývačkou s výstupom na terasu,
- 2 x izba s priestorom na vstavanú skriňu,
- spálňa s priestorom na vstavanú skriňu,
- kúpeľňa s vaňou, sprchovým kútom, WC, 2 x umývadlo,
- samostatné WC,
- technická miestnosť,
Technický popis:
- veľkosť pozemku: 450 m2,
- zastavaná plocha domu: 115 m2,
- strecha Bramac - čierna - väzníkový krov
- murivo: tehla 30 cm
- zateplenie obvodových múrov: 15cm polystyrén, vonkajšia fasáda, trativody
- plastové okná - izolačné troj-sklo s vonkajšou povrchovou úpravou
- vypínače a inteligentné termostaty v každej miestnosti (len s el. vykurovaním), možnosť vykurovania s tepelným čerpadlom
- rekuperácia
- sadrokartóny, omietky, potery,
- príprava na alarm a kamerový systém,
- predpríprava na krb,
Vykurovanie :
- elektrické podlahové vykurovanie a rekuperácia- inteligentný dom- možnosť ovládania cez mobilnú aplikáciu, možnosť vykurovania s tepelným čerpadlom
Dom je napojený na všetky inžinierske siete - elektrika, obecný vodovod, kanalizácia
Výstavba je naplánovaná na jar 2026. Dom sa predáva v stave holo dom. ( Pre podrobné informácie prosím volajte ). Možnosť dokončenia celého domu na klúč. Vieme Vám vyhotoviť vizuál na mieru, ktorý Vám vyhotoví profesionálna dizajnérka a taktiež pomôže s výberom materiálov.
Nehnuteľnosť je možné pre financovať prostredníctvom hypotekárneho úveru. S financovaním Vám pomôže náš hypotekárny špecialista. Ku každému klientovi sa v rámci financovania pristupuje individuálne.
Obec Drahovce je vzdialená od mesta Piešťany len 6 km. Nachádza sa tu materská škola, škola, ambulancia praktického lekára, detská ambulancia pre deti a dorast, zubná ambulancia, lekáreň.
Pri kúpe Vám zabezpečíme kompletný servis od obhliadok až po spracovanie zmlúv a prevod nehnuteľností. Kontaktujte nás a my Vám radi pomôžeme. Pre podrobné informácie volajte 0911 511 601.
Poloha nehnuteľnosti na mape
Podrobné informácie
vrátane provízie
prízemie
4
115 m²
450 m²
450 m²
115 m²
osobné
aktívne
áno
verejný vodovod
230/400V
áno
vaňa a sprchovací kút
vlastné – kombinované
áno
tehla
áno
predpríprava
A
áno
plastové
rovina
asfaltová cesta
0911 511 601
Slovensko
Piešťany
Drahovce
Kostolná
osobné
Rodinný dom - novostavba
predaj
- 12. január 2026 11:09 hod
- poslať správu
- poslať ponuku na e-mail
- dohodnúť prehliadku objektu
- vytlačiť ponuku
Pre viac informácií kontaktujte
Peter Boršč - majiteľ
majiteľ
Telefón: 0911 511 601
E-mail: borsc@comaccreality.sk

