- Predaj nehnuteľností
- Rodinný dom
- 4iz Novostavba (v štandarde ) Veselé pri Piešťanoch
4iz Novostavba (v štandarde ) Veselé pri Piešťanoch
exkluzívne
208.000,- €
vrátane provízie, možnosť HÚ
Ponúkame novostavbu murovaného 4i rodinného domu v novovybudovanej lokalite s cestou, chodníkom a osvetlením, v obci Veselé. Nachádza sa na pozemku o rozlohe 464 m2. Dom je samostatne stojaci.
Dom je postavený podľa najnovších enviromentálnych noriem a trendov.
Ekonomická trieda A0 – nízke náklady na energie.
Vďaka použitým materiálom a technológiám sú náklady na bývanie v tejto dobe minimálne.
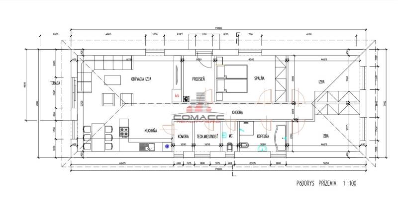
Dispozícia domu:
- vstupná chodba s priestorom na vstavanú skriňu,
- kuchyňa s komorou prepojená s obývačkou s výstupom na terasu,
- 2 x izba s priestorom na vstavanú skriňu,
- spálňa s priestorom na vstavanú skriňu,
- kúpeľňa s vaňou, sprchovým kútom, WC, 2 x umývadlo,
- samostatné WC,
- technická miestnosť,
Technický popis:
- veľkosť pozemku: 464 m2,
- zastavaná plocha domu: 133 m2,
- strecha Bramac - čierna - väzníkový krov
- murivo: tehla 30 cm
- zateplenie obvodových múrov: 15cm polystyrén, vonkajšia fasáda, trativody
- plastové okná - izolačné troj-sklo s vonkajšou povrchovou úpravou antracit
- vypínače a zásuvky
- sádrokartóny, stropná izolácia ISOVER, omietky( sieťka celoplošne), potery,
- príprava na alarm a kamerový systém,
- predpríprava na krb
Vykurovanie :
- vodovodné podlahové vykurovanie s tepelným čerpadlom, možnosť prípravy na fotovoltaiku, elek.žalúzie....
Dom je napojený na všetky inžinierske siete - elektrika, vodovod, kanalizácia
Dom sa predáva v stave štandard - plávajúce podlahy, kúpeľna - sprchový kút, vaňa, umývadlo, 2 x WC, sanita, obklad, interérové dvere, zámková dlažba pred domom
Nehnuteľnosť je možné prefinancovať prostredníctvom hypotekárneho úveru za spolupráci všetkých bánk. S financovaním Vám pomôže náš hypotekárny špecialista. Ku každému klientovi sa v rámci financovania pristupuje individuálne.
Obec Veselé je vzdialená od Piešťan len 10 km, napojenie na diaľnicu. Nachádza sa tu materská škola, základná škola, potraviny......
Pri kúpe Vám zabezpečíme kompletný servis od obhliadok až po spracovanie zmlúv a prevod nehnuteľností. Kontaktujte nás a my Vám radi pomôžeme. Pre podrobné informácie volajte 0911511601.
Poloha nehnuteľnosti na mape
Podrobné informácie
vrátane provízie
prízemie
4
133 m²
464 m²
464 m²
133 m²
osobné
aktívne
verejný vodovod
230/400V
áno
vaňa a sprchovací kút
vlastné – kombinované
vlastné vyhradené
áno
tehla
zariadený
áno
predpríprava
A
plastové
rovina
asfaltová cesta
0911 511 601
Slovensko
Piešťany
Veselé
Veselé
osobné
Rodinný dom - novostavba
predaj
- 8. január 2026 10:01 hod
- poslať správu
- poslať ponuku na e-mail
- dohodnúť prehliadku objektu
- vytlačiť ponuku
Pre viac informácií kontaktujte
Peter Boršč - majiteľ
majiteľ
Telefón: 0911 511 601
E-mail: borsc@comaccreality.sk

