- Predaj nehnuteľností
- Rodinný dom
- 4iz Novostavba - pozemok 464, tepelné čerpadlo Veselé pri Piešťanoch
4iz Novostavba - pozemok 464, tepelné čerpadlo Veselé pri Piešťanoch
182.900,- €
vrátane provízie, možnosť HÚ
Ponúkame novostavbu murovaného 4i rodinného domu v novovybudovanej lokalite s cestou, chodníkom a osvetlením, v obci Veselé. Nachádza sa na pozemku o rozlohe 464 m2. Dom je samostatne stojaci.
Dom je postavený podľa najnovších enviromentálnych noriem a trendov.
Ekonomická trieda A0 – nízke náklady na energie.
Vďaka použitým materiálom a technológiám sú náklady na bývanie v tejto dobe minimálne.
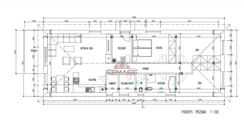
Dispozícia domu:
- vstupná chodba s priestorom na vstavanú skriňu,
- kuchyňa s komorou prepojená s obývačkou s výstupom na terasu,
- 2 x izba s priestorom na vstavanú skriňu,
- spálňa s priestorom na vstavanú skriňu,
- kúpeľňa s vaňou, sprchovým kútom, WC, 2 x umývadlo,
- samostatné WC,
- technická miestnosť,
Technický popis:
- veľkosť pozemku: 464 m2,
- zastavaná plocha domu: 133 m2,
- strecha Bramac - čierna - väzníkový krov
- murivo: tehla 30 cm
- zateplenie obvodových múrov: 15cm polystyrén, vonkajšia fasáda, trativody
- plastové okná - izolačné troj-sklo s vonkajšou povrchovou úpravou antracit
- vypínače a zásuvky
- sádrokartóny, stropná izolácia ISOVER, omietky( sieťka celoplošne), potery,
- príprava na alarm a kamerový systém,
- predpríprava na krb
Vykurovanie :
- vodovodné podlahové vykurovanie s tepelným čerpadlom, možnosť prípravy na fotovoltaiku, elek.žalúzie....
Dom je napojený na všetky inžinierske siete - elektrika, vodovod, kanalizácia
Dom sa predáva v stave holodom. Po dohode je možné dom dokončiť do štandardu, pričom Vám vieme vyhotoviť vizuál na mieru, ktorý Vám vyhotoví profesionálna dizajnérka a taktiež pomôže s výberom materiálov.
Nehnuteľnosť je možné prefinancovať prostredníctvom hypotekárneho úveru za spolupráci všetkých bánk. S financovaním Vám pomôže náš hypotekárny špecialista. Ku každému klientovi sa v rámci financovania pristupuje individuálne.
Obec Veselé je vzdialená od Piešťan len 10 km, napojenie na diaľnicu. Nachádza sa tu materská škola, základná škola, potraviny......
Pri kúpe Vám zabezpečíme kompletný servis od obhliadok až po spracovanie zmlúv a prevod nehnuteľností. Kontaktujte nás a my Vám radi pomôžeme. Pre podrobné informácie volajte 0911511601.
Poloha nehnuteľnosti na mape
Podrobné informácie
vrátane provízie
prízemie
4
133 m²
464 m²
464 m²
120 m²
aktívne
áno
verejný vodovod
230/400V
áno
optika
áno
vlastné – kombinované
vlastné vyhradené
áno
tehla
áno
predpríprava
A
áno
plastové
rovina
asfaltová cesta
0911 511 601
Slovensko
Piešťany
Veselé
Veselé
Rodinný dom - novostavba
predaj
- 2. december 2025 09:29 hod
- poslať správu
- poslať ponuku na e-mail
- dohodnúť prehliadku objektu
- vytlačiť ponuku
Pre viac informácií kontaktujte
Peter Boršč - majiteľ
majiteľ
Telefón: 0911 511 601
E-mail: borsc@comaccreality.sk

